DLS-31A雙位置繼電器_DLS-31A繼電器_接線圖
沖擊、同步、接地、雙位置繼電器系列
DLS-31A雙位置繼電器概述
DLS-31A型雙位置繼電器(以下筒稱產品)用于各種保護裝置中,以實現機械閉鎖,并有位置指示。
DLS-31A雙位置繼電器使用條件
1使用地點周圍環境溫度為-25~40°C;
2使用地點的大氣壓力為80~106kPa(海拔高度為2km及以下)
3使用地點周圍空氣相對濕度不大于90% ( 25°C) ;
4安裝位置偏高其安裝垂直面的任一方向不大于5°;
5輸入激勵量的變化范圍為100% ~ 110%額定値;
6使用地點不允許有較強的振動與沖擊 ;
7使用地點不得有爆炸危險的介質,周圍介質中不應含有腐蝕金屬和破壞絕緣的氣體及導電介質,不允許充滿蒸氣及有較嚴重的霉菌。
8使用地點應具有防御雨、雪、風、沙的設施;
9使用地點不允許有較強的外磁感應強度。
DLS-31A雙位置繼電器工作原理
3.1結構
產品由兩個相互聯接的電磁機構、互鎖滑塊機構、位置指示器及觸點系統組成。每個電磁機構由磁軛、線圈及銜鐵組成,互鎖滑塊機構由兩個滑塊及拉簧組成。
3.2工作原理
電磁機構的原理同一般的拍合式繼電器,當其中一個電磁機構被激勵時,其電磁線圈產生電磁力矩,吸合銜鐵,銜鐵
帯動互鎖滑塊機構,當去掉激勵量時,由于互鎖機構的作用,使得銜鐵保持在一個位置上,同時,銜鐵帶動了觸點系統,使得觸點也保持在一個位置上。當另一個電磁機構被激勵時,使得銜鐵和觸點系統保持在另一個位置上。而兩個電磁機構不能同時施加激勵量。
當銜鐵動作時,帯動了位置指示器,指示出產品所處的位置。綠牌表示跳閘位置,紅牌表示合閘位置。
DLS-31A系列雙位置繼電器參數
1.觸點形式

2.額定值(激勵量均為直流)

a.電壓繞組的動作值不大于額定電壓值的70% ;3.動作值
b.電流繞組的動作值不大于額定電流值的90%。
4.功率消耗
當輸入激勵量為額定值時,產品中每個繞組的功率消耗不大于12W。
5.熱性能
當環境溫度為+40°C時,產品線圈應能承受110%額定值歷時2min,其溫升不超過65°C。
6.介質強度
產品各導電電路連在一起對外露的非帶電金屬零件或外殼之間,以及線圈電路對觸點電路之間,應能承受2kV(有效值) , 50Hz的交流試驗電壓歷時1min的試驗,而無絕緣擊穿或閃絡現象。
7.觸點性能
產品觸點應能斷開電壓不超過250V,電流不超過1A,容量為50W的直流有感負荷電路(時間常數為5±75ms) ,或電壓不超過
250V,電流不超過3A,容量為250VA的交流電路(功率因數為0.4±0.1 ) 5000次。
8.機械壽命
產品的機械壽命為10000次。
9.產品的動作速率應不大于60次/h,線圈每次通電時間不超過1s。
DLS-31A雙位置繼電器內部接線圖

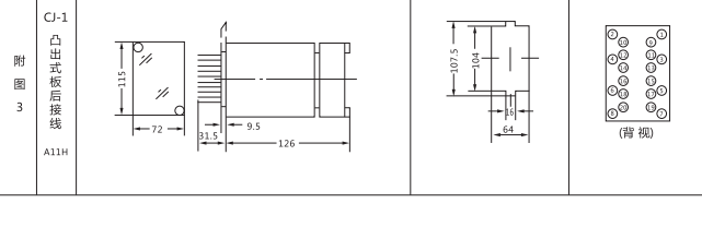
DLS-31A雙位置繼電器外形結構




打印當前頁
發郵件給我們: 1932551438@qq.com
手機: 18930817953




