JY-1C/1電壓繼電器用途
JY-1C/1電壓繼電器是靜態型,瞬動、交流電壓繼電器。可用于發電機、變壓器和輸電線的繼電保護裝置中,作為過電壓保護或低電壓閉鎖的動作元件。該繼電器由集成電路構成執行回路,具有靈敏度高,動作時間快,功耗小、整定方便等特點,繼電器的直流電源和出口繼電器有信號指示燈監視,繼電器有2付大容量的轉換接點輸出,用戶可根據具體情況直接控制被保護設備(JY-1A例外)。繼電器動作值由面板上的撥碼開關進行整定,直觀方便。
JY-1C/1電壓繼電器型號、名稱

JY-1C/1電壓繼電器工作原理

由電壓-電壓變換器將輸入電壓變換成適當的電壓,通過動作值的整定和有源帶通濾波,經過全波整流,利用其脈動電壓進行比較積 分,由檢測器對積分電平時行判斷,當積分電平超出檢測電平時,檢測器輸出高電平,驅動出口繼電器動作。
JY-1A,JY-1B繼電器采用了新型的積分判斷電路,使繼電器的動作時間和返回時間都較快,暫態超越也小,有很強的抗干擾性能。
JY-1C/1電壓繼電器主要技術參數
額定值
a) 額定交流電壓: 100V, 400V;
b) 頻率: 50Hz; c) 額定輔助直流電壓:48V, 110V, 220V。
2.整定范圍:1 ~240V; 40 ~ 440V。
3.動作時間
a) 過電壓-1.2倍整定值時: 動作時間不大于50ms;
b) 低電壓-0.8倍整定值時: 動作時間不大于50ms。
4.返回時間
a) 過電壓-電壓瞬時變化從1.2倍整定值至零時不大于50ms;
b) 低電壓-電壓瞬時變化從0.8倍至1.2倍整定值時不大于50ms。
5.動作一致性:不大于1%。
6.定值誤差:不大于±5%。
7.返回系數:過電壓不小于0.9,低電壓不大于1.1。
8.功耗
交流功耗:額定電壓時,不大于1VA。
直流功耗:在額定輔助直流電壓下,繼電器動作前功耗不大于3W,動作后功耗不大于6W。
9.觸點功能 當時間常數為5ms的電感性負載時,繼電器觸點斷開容量為交流電壓250V時,電流不大于2A,直流電壓為24V時,電流不大于5A。(JY- 1A: 在時間常數為40ms的直流有感電路中,電壓不大于250V,電流不大于1A,觸點斷開容量為30W)。
10.工作條件
a) 大氣壓為80kPa-106kPa;
b) 環境溫度-10℃-+50℃;
c) 空氣相對濕度不高于90%(月平均**溫度20℃);
d) 使用地方不允許有較強的外磁感應強度;
e) 使用地方不允許有導電塵埃與破壞金屬和絕緣的腐蝕性氣體;
f) 使用地方不允許有爆炸危險及充滿塵埃的介質;
g) 使用地方不允許有較嚴重的霉菌存在;
h) 使用地方不允許有較強的振動與沖擊;
i) 使用地方應當有防雨、雪、風沙裝置及沒有充滿水蒸汽。
11.絕緣電阻 繼電器外殼與各端子間,以及電氣上無聯系的各電路之間的絕緣電阻不小于300MΩ。
12.介質強度 繼電器外殼與各端子間,以及電氣上無聯系的各電路之間的絕緣強度,應能承受2kV,50Hz交流電壓,歷時1min無閃絡 與擊穿現象。同 組接點間應能承受1kV,50Hz交流電壓,歷時1min無閃絡與擊穿現象。
13.抗干擾性能 符合GB7261和GB6261《靜態繼電器及保護裝置的電氣干擾試驗》。
JY-1C/1電壓繼電器內部接線圖
如下圖所示(圖中觸點為繼電器直流電壓和交流電壓均未加,即繼電器處于失電狀態時的狀態,當繼電器加上直流輔助電壓,但交流電壓 為零時,過電壓繼電器的觸點狀態與圖中觸點狀態相同,而低電壓繼電器觸 點狀態正好相反)。

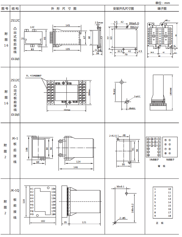
JY-1C/1電壓繼電器外形及開孔尺寸




電壓繼電器系列
打印當前頁
發郵件給我們: 1932551438@qq.com
手機: 18930817953




