中間繼電器與接地繼電器特點及性能參數-上海上繼科技有限公司
發表時間:2019-08-17 15:53 瀏覽次數:1229 〖返回〗
一、JZY-35靜態中間繼電器
外形及開孔尺寸

二、JZY-35靜態中間繼電器
型號含義
靜態中間繼電器有JZJ(HZJ)、JZY(HZY)、JZL(HZL)、 JZB (HZB)、JZS(HZS)等型號
其中,JZ和HZ表示靜態中間繼電器。第三位字母:J表示交流工作電壓,Y表示直流工作電壓,L表示電流工作,B表示帶保持,S表示帶延時)
隨著繼電器所用場合的不斷增加,繼電器的工藝也在不斷改進,靜態中間繼電器也逐漸朝著輕巧,安裝方便的方向發展。RZY、RZYJ、RZF、RZE系列歐規標準的導軌式靜態中間繼電器,殼體體積小,重量只有200-350g、可無限拼裝,觸點易于擴展,可直接安裝在開關柜35mm導軌條上,從而提高了安裝密度,方便接線。
用途JZS-7系列靜態可調延時中間繼電器用于直流或交流操作的各種保護和自動控制線路中,作為輔助繼電器,以增加觸點數量和觸點容量。可根據需要自由調節通電延時或斷電延時的時間。2
主要性能本系列產品為靜態儲能延時型中間繼電器,通電瞬間電容儲能,繼電器通過數字電路根據用戶設定去控制中間繼電器斷開或動作,從而達到延時目的。具有下列特點:1、采用高性能密封繼電器。防潮,防塵,不斷線,可靠性高。2、繼電器動作后有燈光指示,有電源指示。3、繼電器的電氣壽命和機械壽命長。4、觸點容量大,觸點接觸電阻小。5、絕緣耐壓水平高。
繼電器額定值額定電壓值:6V,12V,24V,48V,110V,220V
AC、DC;380VAC。 觸點容量在電壓不大于250V,功率因數COSφ為1.0的交流電路中,可分斷10A。直流:普通型:接通DC220V,10A;斷開DC220V,τ=5mS,50W負載。B型:接通DC220V,10A;斷開DC250V,τ=5mS,500W大容量觸點,極限容量為1500W。保持值
0.7~1.2倍額定電壓,動作延時≤20mS,最小可調返回延時≤20mS。
三、JZY-35靜態中間繼電器
特點
1.靜態中間繼電器采用線圈電壓較低的多個優質密封小型繼電器組合而成,防潮、防塵、不斷線,可靠性高,克服了電磁型中間繼電器導線過細易斷線的缺點。
2.功耗小,溫升低,不需外附大功率電阻,可任意安裝及接線方便。
3.繼電器觸點容量大,工作壽命長。
4.繼電器動作后有發光管指示,便于現場觀察。
5.延時只需用面板上的撥碼開關整定,延時精度高,延時范圍可在0.02-5.00S任意整定。
四、JZY-35靜態中間繼電器
內部接線圖及外引接線圖


DD-1/40接地繼電器,為瞬時動作的過電流繼電器,用作小電流接地電力系統高電壓三相交流發電機和電動機的接地零序過電流保護。繼電器線圈接零序電流互感器(電纜式、母線式、或者有三個相電流互感器組成的零序電流濾過器)。當被保護電機的零點經阻抗接地時繼電器接入變流器的差動回路。當繼電器接入由三個電流互感器組成零序電流濾過器時,還應接入閉鎖繼電器,以防止由于外部穿越性短路不穩定電流可能引起的誤動作。
一、DD-1/40接地繼電器的參數
·額定電流:100mA、頻率50Hz。
·整定刻度誤差:不大于±6%。
·動作值變差:不大于6%。
·返回系數:不小于0.5。
·功率消耗:在最小整定電流時不大于0.015VA。
·動作時間:在1.2信整定電流時,動作時間不大于0.3s; 3倍整定電流時,動作時間不大于0.1s。
·觸點容量:電壓不大于250V,電流不大于0.5A時,繼電器觸點斷開容量在直流有感負荷電路中間常數為5±0.75ms)為20W,在交流回路中為100VA。
·介質強度:繼電器電路與外殼金屬之間的絕緣應耐受交流50Hz,電壓2000V歷時1min的試驗而無擊穿或閃絡現象。
二、DD-1/40接地繼電器的接線圖

三、DD-1/40接地繼電器的開孔尺寸
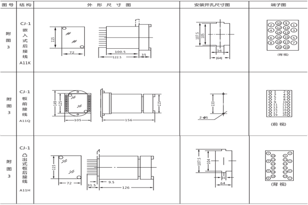
DD-1采用A11殼體,如圖所示

上海上繼科技有限公司(專注電力保護裝置生產廠家)銷售熱線:021-57233089 QQ:1932551438
(以上內容僅供參考,上海上繼科技有限公司有最終解釋權)
更多繼電器精彩文章→時間繼電器與電壓繼電器特點和性能參數





