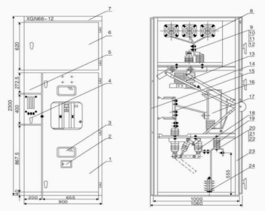
環網柜比中置柜更有優勢-上海上繼科技有限公司
發表時間:2022-09-22 09:54 瀏覽次數:1276 〖返回〗環網柜主要作用就是為了能夠有效的提高供電持續性與穩定性,且能讓用戶們可以從兩個方面進行選擇電源的接入,一般都是將供電網連接成為環形狀久而久之慢慢就定義它為環網供電。以前在我們生活的城市中例如住宅小區、企業工廠以及大型建筑等十千伏配電系統之中,會偶爾的出現因為負載容量不能夠承受很多,那么就會在它高壓回路當中使用負荷開關控制并且配合斷路器保護,而這種系統則是采用了環形網供電方式。環網柜的絕緣功能可以采用很多的方法分別有空氣絕緣及六氟化硫氣體絕緣等等。中置柜專業術語是叫做鎧裝型移開中置式金屬封閉開光設備,它的整體結構可以分做三層,其最上面的一層是安裝母線以及儀表等配件使用,中間部分是為了放置斷路器而下層為電纜輸入輸出線。

環網柜就是將已經組合完成的高壓開關設備放入到鋼板材質制作而成的柜體中,或者是采用拼接的方式組合而成環網供電單元的電氣設備,該設備的主要核心部分就是利用各個不同功能的開關以及熔斷路等電器部件,并且具備了結構簡單有效、整體體積小、性價比高以及可提高供電參數性能等安全優點。環網的意思就是將配電網模式用環形的方式提供用電,讓供電的每個支線形成為一個閉合的環形,供電的電源不斷的向這個支線供電,從而在每條支線上慢慢通過高壓開關向著外部輸送配電。這樣的輸送供電好處就是在每個配電的支線既可以從左側干線上取得電源,又可以從右側的干線上取得電源。假如出現了兩側中有一邊出現故障而另外一邊會繼續的保持供電工作,無論是總電源是采用單路供電還是多路,都會讓每個配電支線都像雙路似得進行供電,從而提高了環網柜供電的可靠性。中置柜的柜體體積要比環網柜的要大,而且在在價格方面至少要高出兩倍左右,下面來對比下它們之間的性能。首先是它們的聯鎖機構性能差別,環網柜的聯鎖機構在設計上簡單而且具備五防功能隔離開關和斷路器都是采用了機械閉鎖;而中置柜的聯鎖機構在內部的結構設計上來講十分的復雜,所以要是出現機構的卡死會導致手車無法操作。 其次就是兩者的占地面積,環網柜在結構上更為緊湊體積小占地面積小,深度僅僅為840毫米可以靠墻安裝;中置柜體積比較大柜體的深度達到了1500毫米,相對占地面積也就變大了而且在柜體的后面還考慮安裝或維護通道。最后就是開關操作及可靠性環網柜是可以擁有獨立的開關這樣方便操作,一次主回路是固定的電氣性能相對穩定可靠性高;中置柜沒有獨立的隔離開關操作比較繁瑣,假如出現開關的接觸不好容易出現閃落或者是短路等問題。
公司介紹:上海上繼科技有限公司是一家專業從事電力系統繼電保護及智能電網電力自動化產品的研發、設計、生產、銷售和服務為一體的高科技公司。擁有資深繼電保護專家團隊和國內**的檢測儀器及校驗設備。同時還引用國內外先進技術,來進行技術創新。本公司的產品廣泛用于電力、工礦、鐵路、建筑等國家重大工程輸配變電系統上,產品遠銷東南亞及中東地區。產品通過國家繼電保護及自動化設備質量監督檢驗中心檢測,獲得ISO9001國際質量體系認證。“科技創新,誠信務實”是公司的經營理念,本公司以高超的技術支持和對用戶高度負責的售后服務贏得了輸配電成套企業的信賴,且樹立了良好的信譽。
公司主營:繼電器(時間繼電器,電壓繼電器,電流繼電器,中間繼電器,信號繼電器,閃光繼電器,沖擊繼電器,同步檢查繼電器,接地繼電器,差動繼電器,重合閘繼電器,絕緣監視繼電器,雙位置繼電器,模數化繼電器),智能操控裝置,微機保護裝置,電力儀表
上海上繼科技有限公司(專注電力保護繼電器生產廠家)銷售熱線:021-57233089 QQ:1932551438
{以上內容僅供參考,上海上繼科技有限公司有最終解釋權}
更多繼電器精彩文章——ZJX-3A剪斷銷信號裝置技術條件及主要性能
- 上一篇:環網柜特點及應用
- 下一篇:電纜分支箱作用與操作





